Halbgasse 20
Altbaucharme trifft Citylife im Herzen von Neubau
Beschreibung
Historischer Altbau in begehrter Lage des 7. Bezirks
Dieses stilvolle Wohnhaus aus der Jahrhundertwende präsentiert sich als gelungene Verbindung aus traditioneller Wiener Altbauarchitektur und zeitgemäßem Stadtleben. Gelegen in einer der gefragtesten Wohngegenden Wiens, nur wenige Schritte von der Mariahilfer Straße entfernt, bietet die Liegenschaft urbanes Wohnen auf hohem Niveau.
Das Haus umfasst drei Vollgeschoße sowie ein ausgebautes Dachgeschoß und beherbergt eine abwechslungsreiche Auswahl an Wohneinheiten. Insgesamt gelangen neun Eigentumswohnungen zum Verkauf, darunter eine Einheit in generalsaniertem Zustand. Die Wohnungsgrößen bewegen sich zwischen rund 45 m² und 72 m² und eignen sich ideal für unterschiedliche Lebenskonzepte – vom Singlehaushalt über Paare bis hin zu kleinen Familien.
Mit seinem historischen Charakter und der lebendigen Lage stellt dieses Objekt sowohl eine attraktive Wohnadresse als auch eine interessante Investitionsmöglichkeit im Herzen des 7. Wiener Gemeindebezirks dar.
Im Zuge behutsamer Modernisierungen wurde großer Wert auf ein stimmiges Zusammenspiel von zeitgemäßem Wohnkomfort und erhaltenswerter Bausubstanz gelegt. Mehrere gezielte Maßnahmen haben das Gebäude optisch wie funktional aufgewertet: Der Eingangsbereich sowie das gesamte Stiegenhaus wurden neu ausgemalt und vermitteln nun ein helles, einladendes Ambiente. Auch die Hoffassade wurde überarbeitet und präsentiert sich in neuem, frischem Erscheinungsbild.
Ein besonderes Plus sind die neu errichteten Balkone auf der Hofseite. Diese großzügig dimensionierten Außenflächen erweitern den Wohnraum ins Freie und bieten einen angenehmen Blick ins Grüne. Sie schaffen zusätzliche Rückzugsmöglichkeiten und erhöhen die Wohnqualität spürbar – eine seltene Ruheoase mitten in der Stadt.
Der ursprüngliche Charakter des Hauses blieb dabei bewusst erhalten, während gleichzeitig eine wohnliche Atmosphäre geschaffen wurde, die heutigen Ansprüchen gerecht wird. Ob zur Eigennutzung oder als nachhaltige Wertanlage: Diese Liegenschaft eröffnet vielfältige Perspektiven für die Zukunft.
Zum Haus gehört zudem ein außergewöhnlich großer, liebevoll gestalteter Allgemeingarten. Die begrünte Innenhofanlage bietet viel Raum für Erholung und Entspannung und stellt einen gemeinschaftlichen Treffpunkt zum Verweilen, Abschalten und Genießen dar – eine grüne Oase im Herzen des Hauses.
Lage und Infrastruktur
Auch die Lage überzeugt auf ganzer Linie: Die Umgebung bietet eine hervorragende Infrastruktur mit zahlreichen Geschäften des täglichen Bedarfs, Cafés, Restaurants sowie kulturellen Einrichtungen. Besonders hervorzuheben ist die unmittelbare Nähe zur Mariahilfer Straße, Wiens bekanntester Einkaufsstraße. Die öffentliche Verkehrsanbindung ist ausgezeichnet – die U-Bahn-Linien U3 und U6 sind fußläufig erreichbar, ebenso mehrere Straßenbahn- und Busverbindungen. Der nahegelegene Westbahnhof gewährleistet zusätzlich eine optimale nationale und internationale Anbindung.
Darüber hinaus stehen im Umfeld umfassende Angebote in den Bereichen Nahversorgung, medizinische Betreuung sowie Bildungs- und Betreuungseinrichtungen für Kinder zur Verfügung. Die Nähe zu beliebten Freizeit- und Erholungszielen wie dem MuseumsQuartier oder dem Burggarten unterstreicht die hohe Lebensqualität dieser Wohnadresse.
Optional können im Haus Stapelparkplätze erworben werden. Der Kaufpreis für einen oberen Stellplatz beträgt € 45.000, jener für einen unteren Stellplatz € 35.000.
Einzelne Objekte in der Anlage
| Top | Stock | Zi. | WFL. | Freifl. | Preis | Plan | |
|---|---|---|---|---|---|---|---|
| 7 | 1.OG | 4 | 71.00 m2 | - | 599.000,00 | ||
| 14 | 3.OG | 2 | 51.00 m2 | - | 370.000,00 | ||
| 15 | 3.OG | 2 | 65.00 m2 | - | 475.000,00 | ||
| 19 | 3.OG | 2 | 70.00 m2 | 4.50 m2 | 549.000,00 | ||
| 22 | 1.DG | 1 | 45.00 m2 | - | 350.000,00 | ||
| 23 | 1.DG | 2 | 59.00 m2 | - | 450.000,00 | ||
| 24 | 2.DG | 2 | 56.00 m2 | 6.00 m2 | 465.000,00 | ||
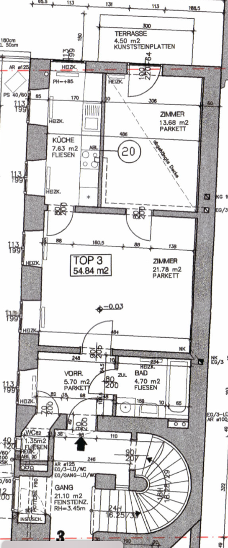
| 3 | EG | 2 | 54.84 m2 | 4.50 m2 | 316.000,00 | ||
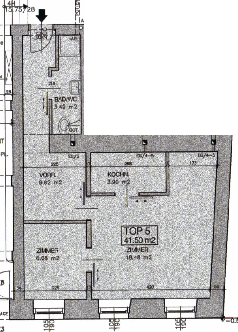
| 5 | EG | 2 | 42.40 m2 | - | 162.000,00 | ||
| 8 | 1.OG | 2 | 74.48 m2 | - | 514.000,00 | ||
| 10 | 2.OG | 3 | 75.77 m2 | - | 349.000,00 | ||
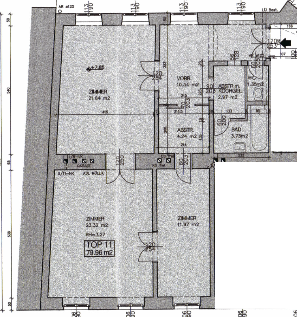
| 11 | 2.OG | 3 | 79.01 m2 | - | 305.000,00 | ||
| 21 | 1.DG | 2 | 54.95 m2 | - | 385.000,00 | ||
| 16 | EG | 2 | 52.53 m2 | 4.50 m2 | 208.000,00 | ||
| 17 | 1.OG | 2 | 52.09 m2 | 7.22 m2 | 206.000,00 |
Fakten
| Zimmer: | 1-4 |
| Wohnflächen: | 45,00 m2 - 72,00 m2 |
| Balkone: | ja |
| Zustand: | Erstbezug |
| Verfügbarkeit: | ab sofort |
Preisdetails
| Preis ab: | € 162.000,00 (ink. USt.) |
Energieeffizienz
| HWB: | 89,90 kWh/m2a |
| Klasse HWB: | D |
| fGEE: | 1,59 |
| Klasse fGEE: | D |
| Engergieausweisgültigkeit: | 21.08.2032 |









